Módulos turísticos
Inversiones turísticas modulares con entrega en 90 días
Turísticos
Si tenés un terreno en una zona turística y querés convertirlo en un negocio rentable, la construcción modular es la herramienta ideal. Ofrecemos soluciones pensadas para generar ingresos desde el primer día: unidades cómodas, con diseño atractivo y calidad hotelera, listas para recibir turistas. Con una inversión medida y una ejecución veloz, podés escalar tu emprendimiento sin esperar años.
Alquiler rápido
Tu cabaña o refugio lista para alquilar en solo 90 días.
Ubicación libre
Se instalan en tu lote, sin necesidad de infraestructura previa.
Diseños para el huésped
Modelos funcionales y estéticos que elevan la experiencia turística.
Producto turístico de alta demanda
Solución habitacional alineada con el crecimiento del turismo interno en Argentina.
QM1
Cocina | Comedor
Espacio técnico
1 Baño
LInea base
*Precio en dólares billete.
Válido en toda la República Argentina, sujeto a disponibilidad de stock.
Los valores publicados no incluyen IVA, traslado, descarga ni fundaciones.
Habika ofrece asesoramiento técnico especializado y cuenta con una red de más de 200 arquitectos en todo el país, disponibles para la presentación de planos municipales y ejecución de fundaciones conforme a las condiciones del terreno.
El precio final podrá variar según la ubicación geográfica, logística y terminaciones seleccionadas.
Habika se reserva el derecho de actualizar los valores en función de las variaciones del mercado y la disponibilidad de materiales.*
Práctico y accesible
Ideal para proyectos turísticos, oficinas o espacios temporarios. Estructura sismo-resistente
Pisos vinílicos
Griferías y artefactos básicos
Aberturas blancas
Funcional, simple y con todo lo esencial.
U$D 24.005
TM1
Dormitorio integrado
Cocina
Espacio técnico
1 Baño
Linea base
*Precio en dólares billete.
Válido en toda la República Argentina, sujeto a disponibilidad de stock.
Los valores publicados no incluyen IVA, traslado, descarga ni fundaciones.
Habika ofrece asesoramiento técnico especializado y cuenta con una red de más de 200 arquitectos en todo el país, disponibles para la presentación de planos municipales y ejecución de fundaciones conforme a las condiciones del terreno.
El precio final podrá variar según la ubicación geográfica, logística y terminaciones seleccionadas.
Habika se reserva el derecho de actualizar los valores en función de las variaciones del mercado y la disponibilidad de materiales.*
Práctico y accesible
Ideal para proyectos turísticos, oficinas o espacios temporarios. Estructura sismo-resistente
Pisos vinílicos
Griferías y artefactos básicos
Aberturas blancas
Funcional, simple y con todo lo esencial.
U$D 23.616
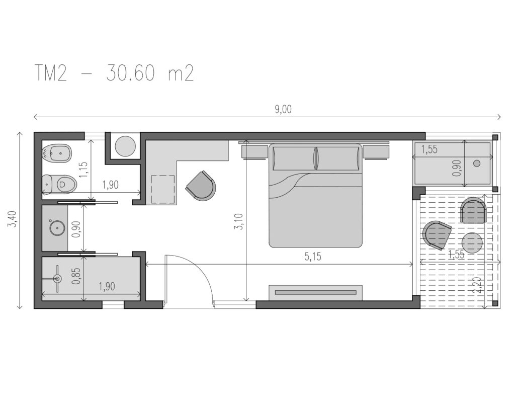
TM2
1 Dormitorio
Baño sanitarios c/ antebaño
Baño ducha
Galería con jacuzzi
Espacio técnico
Linea base
*Precio en dólares billete.
Válido en toda la República Argentina, sujeto a disponibilidad de stock.
Los valores publicados no incluyen IVA, traslado, descarga ni fundaciones.
Habika ofrece asesoramiento técnico especializado y cuenta con una red de más de 200 arquitectos en todo el país, disponibles para la presentación de planos municipales y ejecución de fundaciones conforme a las condiciones del terreno.
El precio final podrá variar según la ubicación geográfica, logística y terminaciones seleccionadas.
Habika se reserva el derecho de actualizar los valores en función de las variaciones del mercado y la disponibilidad de materiales.*
Práctico y accesible
Ideal para proyectos turísticos, oficinas o espacios temporarios. Estructura sismo-resistente
Pisos vinílicos
Griferías y artefactos básicos
Aberturas blancas
Funcional, simple y con todo lo esencial.
U$D 33.898
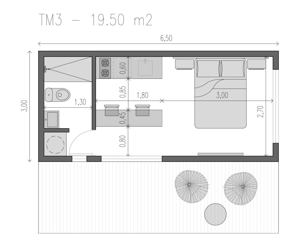
TM3
Dormitorio integrado
Cocina | Comedor
Espacio técnico
1 Baño
Linea base
*Precio en dólares billete.
Válido en toda la República Argentina, sujeto a disponibilidad de stock.
Los valores publicados no incluyen IVA, traslado, descarga ni fundaciones.
Habika ofrece asesoramiento técnico especializado y cuenta con una red de más de 200 arquitectos en todo el país, disponibles para la presentación de planos municipales y ejecución de fundaciones conforme a las condiciones del terreno.
El precio final podrá variar según la ubicación geográfica, logística y terminaciones seleccionadas.
Habika se reserva el derecho de actualizar los valores en función de las variaciones del mercado y la disponibilidad de materiales.*
Práctico y accesible
Ideal para proyectos turísticos, oficinas o espacios temporarios. Estructura sismo-resistente
Pisos vinílicos
Griferías y artefactos básicos
Aberturas blancas
Funcional, simple y con todo lo esencial.
U$D 21.910
Entregas
Para una atención personalizada sobre módulos turísticos completa los campos.
En Habika diseñamos y fabricamos módulos metálicos a medida (no contenedores), desde monoambientes de 15 m² hasta casas, cabañas y grandes complejos turísticos.


























